Mur d'escalade inclinable et programmable ( Vérin )

Cette page contient des modifications qui ne sont pas marquées pour la traduction.

Auteur avatarCOLLIOU Raphaël | Dernière modification 20/05/2025 par COLLIOU Raphaël

Mur d escalade inclinable et programmable V rin ia-f89c9ed7786128e4d6deb9a3e52aa4f9-px-Mur d escalade inclinable et personalisable Sans titre.png.png
Mur d'escalade inclinable et programmable ( Vérin )

Introduction

Notre projet consiste à concevoir un mur d'escalade interactif et modulable, intégrant des parcours lumineux prédéfinis, afin de permettre un entraînement personnalisé.

Matériaux

Partie structurelle

  • 1 planche de 1000x1000
  • 20 prises
  • 20 vis pour les prises
  • 20 écrous pour les prises
  • 20 vis 1.30 pour les prises
  • 8 tasseau de 2000x32x50
  • 20 vis 4.30
  • 35 vis 4.40
  • 25 vis 4.70
  • 1 planche en bois de 3 mm d'épaisseur ( boitier )
  • ~ 3 charnière
  • 1 treuil
  • 1 poulie
  • De la colle

Partie numérique

  • 20 ~ 30 LED
  • 1 carte Arduino méga
  • 1 écran LCD
  • 6 boutons
  • 1 Shield Arduino
  • 1 câble d'alimentation
  • ~50 câbles male/femelle
  • ~10 câbles male/male
  • 7 câbles Grove
  • 1 Capteur AS5600
  • 1 Breadboard

Outils

Insérer un paragraphe

  • Visseuse
  • Découpeuse laser
  • Foret

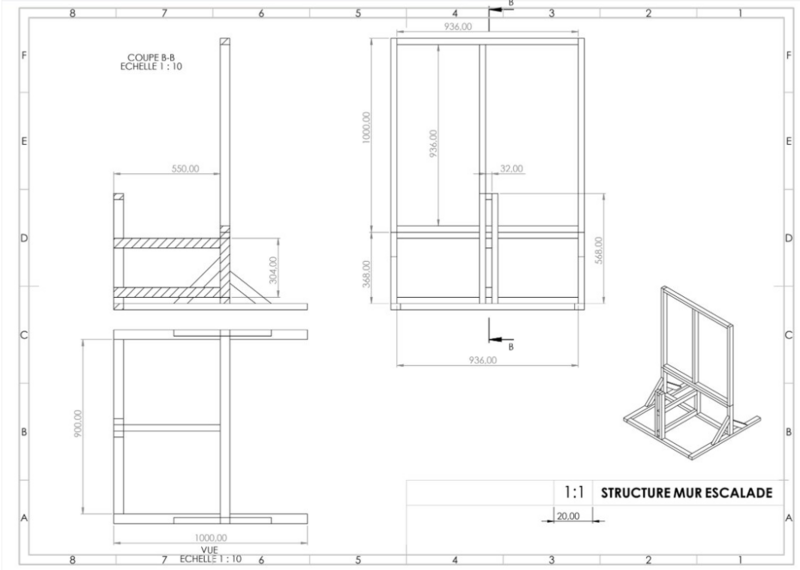
Étape 1 - plan

Réaliser un plan pour pouvoir visualiser les dimensions du mur et se faire une idée de la taille du mur pour pouvoir le placer



Étape 2 - Modélisation

Créations des diagrammes pour une meilleur visualisation des taches

Étape 3 - Modélisation




Étape 4 - Choix des matériaux

Choisir les matériaux dans une démarche économique et durable en plus de choisir des matériaux adapté



Étape 5 - Découpeuse laser

Découper le boitier pour pouvoir insérer les composants

Étape 6 - Codage

Réaliser le code sur Arduino




Étape 7 - Alghoritme

Réaliser un algorithme pour permettre une meilleur compréhension du code




Étape 8 - Plan de câblage

Réaliser un plan de câblage sur Frietzing pour faciliter les branchement a venir




Étape 9 - Composant

Vérifier le bon fonctionnement des composant et réaliser les branchements




Étape 10 - Assemblage

Assemblage du mur et mise en place des prises et des composants électroniques



Étape 11 - Simulation

La simulation du travail final


Commentaires

Draft